Zadzwoń do nas 508-390-748 / 55 232-46-84

W naszej ofercie już jest 61 ogłoszeń!

Mieszkania 18 Domy 7 Działki i grunty 26 Lokale7 Pozostałe3

Mieszkanie

Mieszkanie - Sprzedaż
( 6 382,98 PLN/m2)
300 000 PLN
Nr oferty: EL03031
Typ umowy: Umowa na wyłączność
Typ transakcji: Sprzedaż
Rynek: Wtórny
Miejscowość: Elbląg
Ulica: Płk. Dąbka
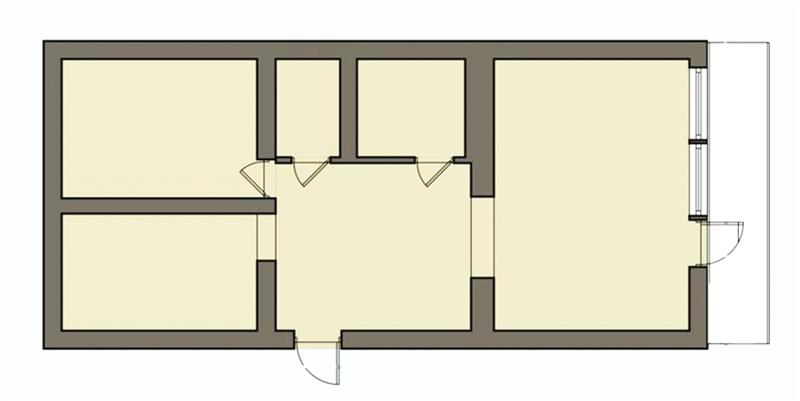
Powierzchnia: 47.00m2
Rodzaj własności: Własność
Powierzchnia działki: 0.00m2
Liczba pokoi: 2
Ogrzewanie: C.o. miejskie
Mamy przyjemność zaprezentować Państwu funkcjonalne mieszkanie przy ul. Płk. Dąbka w Elblągu. LOKALIZACJA: Nieruchomość położona jest w doskonałym punkcie miasta, w bezpośrednim sąsiedztwie centrum handlowego OGRODY, co gwarantuje szybki dostęp do sklepów, usług i rozrywki. W pobliżu znajdują się szkoła, przedszkole, przychodnia, tereny zielone oraz przystanki tramwajowe i autobusowe, zapewniające wygodne połączenie z każdą częścią Elbląga. To idealne miejsce dla osób ceniących wygodę codziennego życia, a jednocześnie spokój i bezpieczeństwo otoczenia. NIERUCHOMOŚĆ: Mieszkanie o powierzchni 47,5 m2 mieści się na IV, ostatnim piętrze budynku, co gwarantuje pełną prywatność i brak sąsiadów nad głową. Składa się z dwóch ustawnych pokoi, oddzielnej kuchni z oknem, łazienki, osobnego WC oraz przedpokoju. Duży balkon pozwala cieszyć się widokiem i świeżym powietrzem. Do mieszkania przynależy piwnica o pow. 3 m2, a dodatkowo właściciele korzystają z drugiego pomieszczenia piwnicznego (1,43 m2) na podstawie umowy dzierżawy z zarządcą, roczna opłata wynosi jedynie 43,68 zł. Lokal jest w dobrym stanie technicznym – posiada okna PCV, glazurę i terakotę w łazience, WC i kuchni oraz panele w pokojach. W cenie pozostają trzy pojemne zabudowy stałe (przedpokój, sypialnia, balkon) oraz umeblowanie i wyposażenie kuchni i łazienk. Aktualny czynsz wynosi 1 040 zł przy 3 osobach. FINANSE: Cena mieszkania: 300 000 PLN. Cena piwnicy: 5.000 PLN Do ceny należy doliczyć koszty notarialne oraz jednorazową opłatę dla biura nieruchomości. Zachęcamy do obejrzenia mieszkania. Niniejsze ogłoszenie ma charakter informacyjny i nie stanowi oferty w rozumieniu art. 66 § 1 Kodeksu cywilnego.

Służymy fachową obsługą, tzn. weryfikujemy stan prawny nieruchomości i w razie potrzeby kierujemy klientów do odpowiednich instytucji oraz urzędów w celu uzupełnienia i sprostowania wszelkich ewentualnych nieprawidłowości.

Ściśle współpracujemy z kancelariami notarialnymi.

Jesteśmy w czasie transakcji przy kliencie od początku do momentu podpisania aktu notarialnego.

Zapewniamy rzetelny i obszerny marketing nieruchomości. promocji, dowożeniu potencjalnych nabywców lub najemców do nieruchomości na własny koszt.

Nasza firma pośredniczy w obrocie nieruchomościami wszelkiego typu, począwszy od mieszkań, domów, przez lokale komercyjne: magazyny, budynki, lokale użytkowe, po szeroki wybór działek budowlanych, rolnych, inwestycyjnych. Ponadto służymy 12-letnim doświadczeniem w prowadzeniu transakcji kupna-sprzedaży różnego rodzaju nieruchomości, oferując pomoc w profesjonalnym rozwiązaniu wszelkich zawiłości prawnych i transakcyjnych, które często pojawiają się przy sprzedaży.

Rozważasz finansowanie zakupu z kredytu? Pracujemy z doradcą kredytowym z wieloletnim stażem, który jest doskonale zorientowany w aktualnym rynku kredytowym. Dobierze najlepszą ofertę dla Twoich potrzeb. Zapraszamy.

Kontakt

Biuro Nieruchomości "DE FACTO" 

POŚREDNIK W OBROCIE NIERUCHOMOŚCIAMI 

Alewtyna Buczko, licencja nr 5416
tel. kom. 508-390-748

82-300 Elbląg, ul. Garbary 17
tel: 55 232-46-84
e-mail: buczko@elblag.com.pl 

Biuro czynne: 10:00 - 17:00

Projekt i realizacja © 2014 multi agencja reklamowa idealmedia - profesjonalne serwisy internetowe.
Wszystkie materiały zawarte na stronie chronione są prawem autorskim i bez zgody nie mogą być używane i powielane.