Zadzwoń do nas 508-390-748 / 55 232-46-84

W naszej ofercie już jest 69 ogłoszeń!

Mieszkania 29 Domy 3 Działki i grunty 24 Lokale9 Pozostałe4

Mieszkanie

Mieszkanie - Sprzedaż
( 7 096,90 PLN/m2)
364 000 PLN
Nr oferty: BX04661
Typ umowy: Umowa na wyłączność
Typ transakcji: Sprzedaż
Rynek: Wtórny
Miejscowość: Elbląg
Ulica: Robotnicza
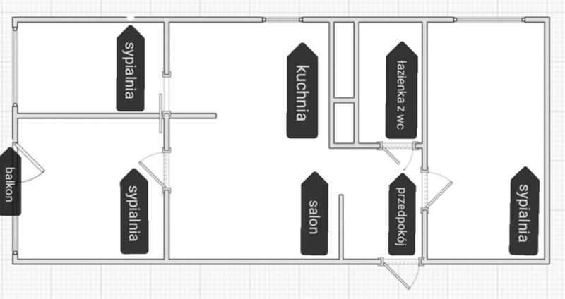
Powierzchnia: 51.29m2
Rodzaj własności: Spółdzielcze własnościowe
Powierzchnia działki: 0.00m2
Liczba pokoi: 4
Ogrzewanie: C.o. miejskie
Mieszkanie 4-pokojowe, w sercu Elbląga – Funkcjonalność i Świetna Lokalizacja Na sprzedaż ustawne, 4-pokojowe mieszkanie o powierzchni 51,29 m2, położone na poszukiwanym drugim piętrze w bloku przy ul. Robotniczej w Elblągu. Nieruchomość znajduje się w zasobach cenionej Spółdzielni Mieszkaniowej „Sielanka" i charakteryzuje się optymalnym wykorzystaniem przestrzeni oraz niskimi kosztami eksploatacji (czynsz 767 zł). Układ pomieszczeń: Obecna aranżacja obejmuje 4 pokoje, co stanowi rzadkość przy tym metrażu. Istnieje łatwa możliwość przywrócenia pierwotnego układu 3-pokojowego dzięki konstrukcji ścianek działowych. Lokal z mediami miejskimi, w dobrym stanie technicznym, czysty i zadbany. Kuchnia z oknem otwarta na salon, łazienka z wanną, wykończona estetyczną glazurą, okna PCV oraz w większości wymieniona instalacja elektryczna. W pokojach ułożono panele, a w częściach komunikacyjnych i części kuchennej trwałą terakotę. Sypialnia posiada balkon od strony podwórza. Do mieszkania przynależy obszerna piwnica o powierzchni 5,36 m2. Budynek jest po termomodernizacji, z estetyczną elewacją. Dużym atutem jest zaplanowany przez Spółdzielnię montaż windy. Ta modernizacja nie tylko podniesie Twój codzienny komfort, ale realnie zwiększy rynkową wartość nieruchomości w najbliższej przyszłości. Teren wokół bloku jest w pełni zagospodarowany: do dyspozycji mieszkańców oddano ogrodzony plac zabaw oraz parking zabezpieczony szlabanem na pilota. Nieruchomość położona jest w punkcie z pełną infrastrukturą miejską. W bezpośrednim sąsiedztwie znajduje się deptak przy ul. Gwiezdnej, liczne punkty handlowo-usługowe, szkoła oraz przedszkola. Jest to idealny wybór dla osób ceniących bliskość centrum przy jednoczesnym komforcie zadbanego osiedla. To oferta skrojona pod potrzeby rodziny, jak i inwestora szukającego pewnej lokaty kapitału. Zapraszamy na prezentację po wcześniejszym kontakcie telefonicznym. Przy zakupie należy uwzględnić koszty notarialne oraz wynagrodzenie biura nieruchomości w wysokości 1,23% brutto.

Służymy fachową obsługą, tzn. weryfikujemy stan prawny nieruchomości i w razie potrzeby kierujemy klientów do odpowiednich instytucji oraz urzędów w celu uzupełnienia i sprostowania wszelkich ewentualnych nieprawidłowości.

Ściśle współpracujemy z kancelariami notarialnymi.

Jesteśmy w czasie transakcji przy kliencie od początku do momentu podpisania aktu notarialnego.

Zapewniamy rzetelny i obszerny marketing nieruchomości. promocji, dowożeniu potencjalnych nabywców lub najemców do nieruchomości na własny koszt.

Nasza firma pośredniczy w obrocie nieruchomościami wszelkiego typu, począwszy od mieszkań, domów, przez lokale komercyjne: magazyny, budynki, lokale użytkowe, po szeroki wybór działek budowlanych, rolnych, inwestycyjnych. Ponadto służymy 12-letnim doświadczeniem w prowadzeniu transakcji kupna-sprzedaży różnego rodzaju nieruchomości, oferując pomoc w profesjonalnym rozwiązaniu wszelkich zawiłości prawnych i transakcyjnych, które często pojawiają się przy sprzedaży.

Rozważasz finansowanie zakupu z kredytu? Pracujemy z doradcą kredytowym z wieloletnim stażem, który jest doskonale zorientowany w aktualnym rynku kredytowym. Dobierze najlepszą ofertę dla Twoich potrzeb. Zapraszamy.

Kontakt

Biuro Nieruchomości "DE FACTO" 

POŚREDNIK W OBROCIE NIERUCHOMOŚCIAMI 

Alewtyna Buczko, licencja nr 5416
tel. kom. 508-390-748

82-300 Elbląg, ul. Garbary 17
tel: 55 232-46-84
e-mail: buczko@elblag.com.pl 

Biuro czynne: 10:00 - 17:00

Projekt i realizacja © 2014 multi agencja reklamowa idealmedia - profesjonalne serwisy internetowe.
Wszystkie materiały zawarte na stronie chronione są prawem autorskim i bez zgody nie mogą być używane i powielane.