Zadzwoń do nas 508-390-748 / 55 232-46-84

W naszej ofercie już jest 72 ogłoszeń!

Mieszkania 31 Domy 4 Działki i grunty 22 Lokale11 Pozostałe4

Lokal użytkowy

Lokal użytkowy - Wynajem
( 31,45 PLN/m2)
2 000 PLN
Nr oferty: EL03071
Typ umowy: Brak umowy
Typ transakcji: Wynajem
Rynek: Wtórny
Miejscowość: Pasłęk
Ulica: Stare Miasto
Powierzchnia: 63.60m2
Rodzaj własności: Własność
Powierzchnia działki: 0.00m2
Liczba pokoi: 4
Ogrzewanie: C.o. miejskie
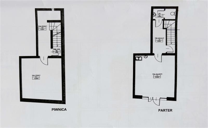
Mamy przyjemność zaprezentować Państwu nowoczesny lokal na Starym Mieście w Pasłęku LOKALIZACJA: Propozycja wynajmu lokalu użytkowego w prestiżowej lokalizacji na Starym Mieście w Pasłęku.To centralny punkt miasta, chętnie odwiedzany zarówno przez mieszkańców, jak i turystów.W bezpośrednim sąsiedztwie znajdują się inne lokale usługowe, sklepy, urzędy, punkty gastronomiczne oraz miejsca parkingowe, co zapewnia duży ruch pieszych i dobrą widoczność lokalu. Lokal mieści się w nowo wybudowanej kamienicy, która doskonale wpisuje się w historyczną tkankę miasta, a jednocześnie spełnia nowoczesne standardy. ZALETY LOKALIZACJI I BUDYNKU: Reprezentacyjna część miasta – Stare Miasto Doskonała ekspozycja witryn – lokal widoczny z ulicy Nowoczesny budynek z 2024 roku – energooszczędny i estetyczny Wysoki standard części wspólnych W pobliżu miejsca parkingowe dla klientów Stały przepływ potencjalnych klientów (duże natężenie ruchu pieszych) NIERUCHOMOŚĆ Lokal użytkowy o łącznej powierzchni 63,60 m2 składa się z dwóch poziomów: Parter: 31,50 m2 – główna sala z witrynami, zaplecze socjalne i toaleta. Partner jest wykończony i gotowy do rozpoczęcia działalności. Poziom -1 (piwnica): 32,10 m2 – pomieszczenia do adaptacji WARUNKI NAJMU Czynsz najmu: 2000 zł netto Opłaty dodatkowe: czynsz administracyjny, prąd według zużycia Kaucja: 3500 zł Jednorazowa opłata za czynności pośrednictwa WAŻNE INFORMACJE Lokal idealny pod działalność biurową, usługową lub handlową Wykluczona działalność gastronomiczna Lokal nowy Oferta ma charakter informacyjny i nie stanowi oferty handlowej w rozumieniu art. 66 §1 Kodeksu Cywilnego.

Służymy fachową obsługą, tzn. weryfikujemy stan prawny nieruchomości i w razie potrzeby kierujemy klientów do odpowiednich instytucji oraz urzędów w celu uzupełnienia i sprostowania wszelkich ewentualnych nieprawidłowości.

Ściśle współpracujemy z kancelariami notarialnymi.

Jesteśmy w czasie transakcji przy kliencie od początku do momentu podpisania aktu notarialnego.

Zapewniamy rzetelny i obszerny marketing nieruchomości. promocji, dowożeniu potencjalnych nabywców lub najemców do nieruchomości na własny koszt.

Nasza firma pośredniczy w obrocie nieruchomościami wszelkiego typu, począwszy od mieszkań, domów, przez lokale komercyjne: magazyny, budynki, lokale użytkowe, po szeroki wybór działek budowlanych, rolnych, inwestycyjnych. Ponadto służymy 12-letnim doświadczeniem w prowadzeniu transakcji kupna-sprzedaży różnego rodzaju nieruchomości, oferując pomoc w profesjonalnym rozwiązaniu wszelkich zawiłości prawnych i transakcyjnych, które często pojawiają się przy sprzedaży.

Rozważasz finansowanie zakupu z kredytu? Pracujemy z doradcą kredytowym z wieloletnim stażem, który jest doskonale zorientowany w aktualnym rynku kredytowym. Dobierze najlepszą ofertę dla Twoich potrzeb. Zapraszamy.

Kontakt

Biuro Nieruchomości "DE FACTO" 

POŚREDNIK W OBROCIE NIERUCHOMOŚCIAMI 

Alewtyna Buczko, licencja nr 5416
tel. kom. 508-390-748

82-300 Elbląg, ul. Garbary 17
tel: 55 232-46-84
e-mail: buczko@elblag.com.pl 

Biuro czynne: 10:00 - 17:00

Projekt i realizacja © 2014 multi agencja reklamowa idealmedia - profesjonalne serwisy internetowe.
Wszystkie materiały zawarte na stronie chronione są prawem autorskim i bez zgody nie mogą być używane i powielane.